地區|三峽_豐禾川匯
成員|工程師
坪數|14坪
屋況|新成屋
風格|北歐簡約
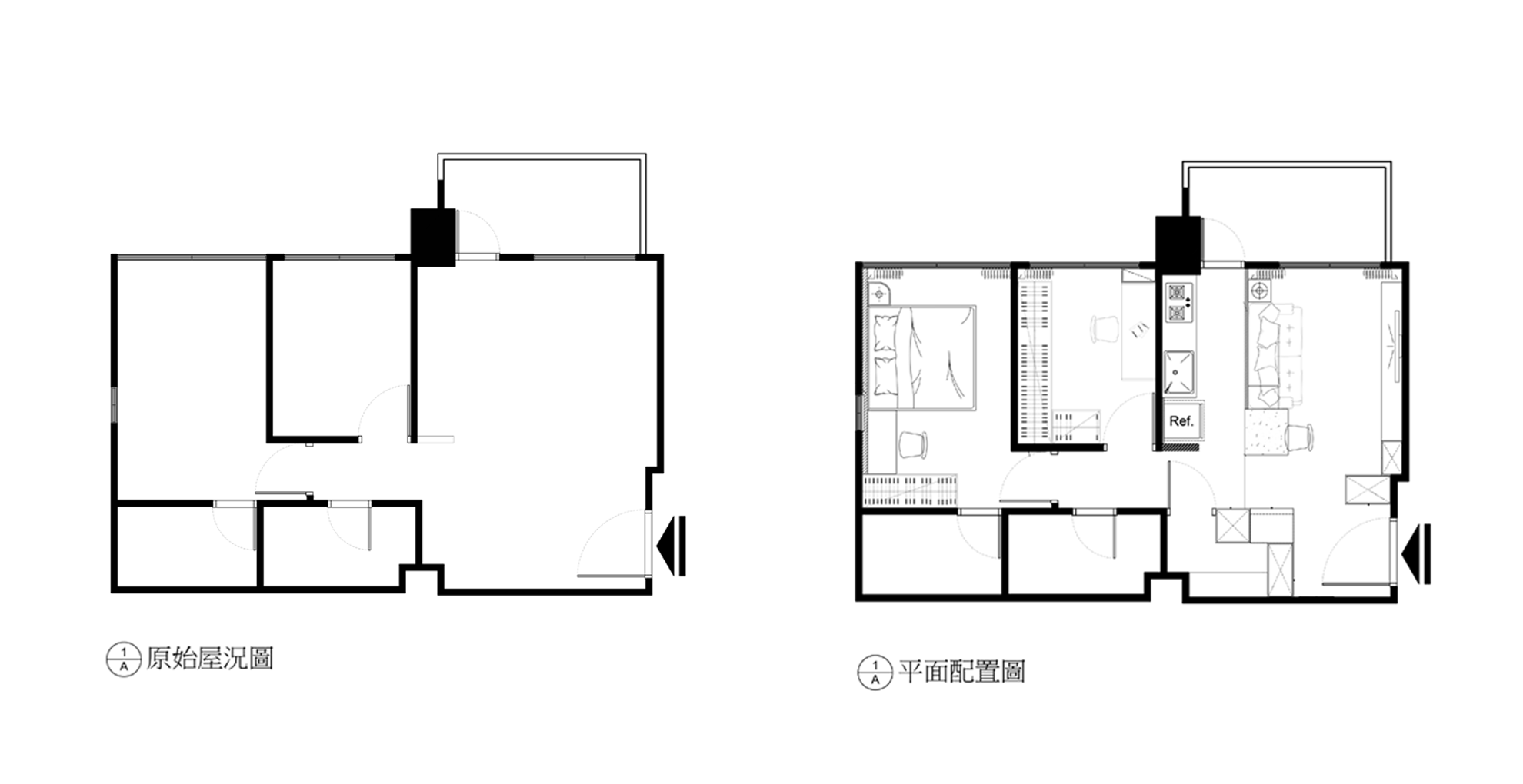
格局|2房1廳2衛1廚

屋主是黃金單身漢,偏愛極簡生活。整體使用木質與灰調交織出沉穩的基調,少了繁複卻多了安定的氣息。每個細節都藏著屋主對家的用心,屋主留下一處空白,靜靜等待未來女主人到來,為這個家添上最後一筆溫度。

一進門,寬敞的玄關區與端景台映入眼簾,回家後包包、鑰匙、外套,都能在玄關輕鬆放置。

這次的電視牆,我們採用弧形延伸設計,柔化空間線條,讓視覺不顯銳利。上方特別預留打燈空間,不僅營造氛圍光感,也讓整體空間更加通透、不壓迫。
利用木柵設計隱藏儲藏室,讓電器收納更有條理,線路沿著弧形巧妙收進格柵櫃中,既美觀又兼具散熱功能。


廚房與客廳採半開放式設計,以沙發背板作區隔,劃分兩個空間的同時,又保留視覺的開闊感與互動性。

電器櫃與端景台採延伸一體式設計,讓視覺更整齊舒適,同時也增加檯面使用空間,解決廚房空間不足的問題。
端景台還能化身輕食區,擺上一台咖啡機,伴隨咖啡的香氣,喚醒早晨的美好,開啟充滿能量的一天~

屋主很喜歡滑雪,我們特別從電器櫃延伸出一道隱藏門,門後其實藏著一間儲物間!不僅能收納滑雪裝備,還能放置各種運動器材與大型物品,實用又不影響整體美感。




造型窗的設計,不僅能有效遮擋光源,還讓造型門與牆面融為一體,呈現俐落且一致的美感~






設計區域
全室(不含衛浴)
使用材料
木作、油漆、系統櫃、玻璃
屋主的話
